18/08/2023
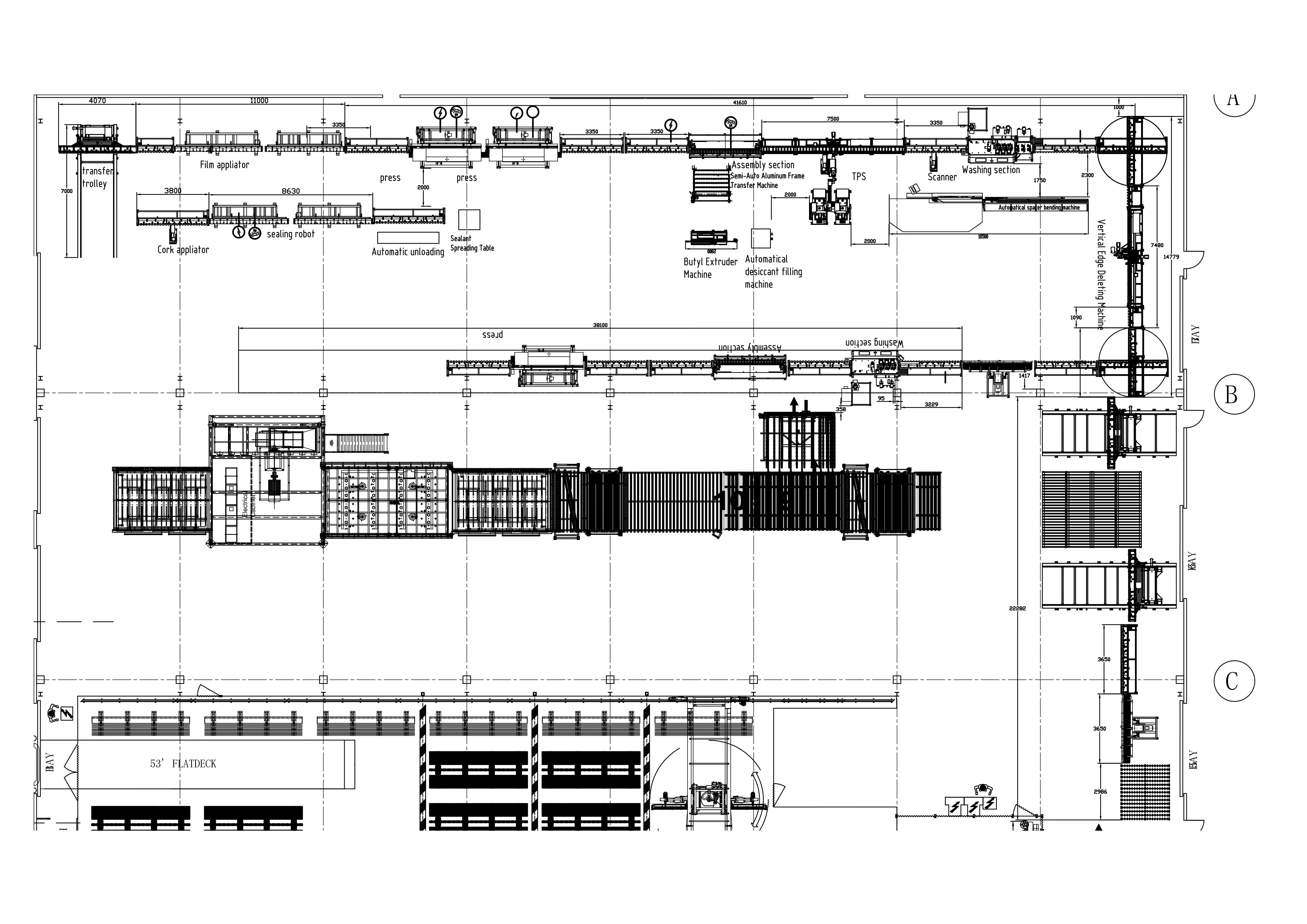
LIJIANG Glass proporcionará una planificación general de planta profesional y eficiente para los talleres de procesamiento de vidrio aislante. A través de la combinación orgánica de varios procesos, la ubicación centralizada de procesos relacionados y un diseño optimizado, minimizando el manejo, utilizando el espacio tanto como sea posible y entregando estas actividades sin valor agregado para lograr los objetivos de acortar los ciclos, mejorar la eficiencia y optimizar la eficiencia. producción.
